por sirlenibatista » Ter Mar 23, 2010 21:40
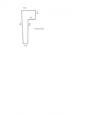
Boa tarde! Eu estou fazendo curso pre vestibular, e não consigo resolver este problema, pois não me lembro das operações necessarias para isso: O terreno mede: 25 mts de frente, 142mts de comprimento a esquerda; a direita mede 108,50 mts depois tem uma reta para a direita de 32 mts, sobe em linha reta medindo 35 mts e tem 65,80 de fundos. Qual a medida total do terreno? Estou quebrando a cabeça a dias e não consigo encontrar o tamanho do terreno, por favor me ajudem, e junto com a medida do terreno, me indiquem quais operações devo fazer. Obrigado, muito obrigado!!!
Obs. Segue anexo a figura do terreno para melhor compreensão da pergunta.

- esta é a figura do terreno
-
sirlenibatista
- Novo Usuário

-
- Mensagens: 4
- Registrado em: Ter Mar 23, 2010 19:05
- Formação Escolar: ENSINO MÉDIO
- Andamento: formado
por Neperiano » Qua Mar 24, 2010 10:47
Ola
Para resolver essa questão basta dividir este terreno em duas partes, ou seja a área 1, que vai ser a de 25 metros de frente, e 108 metros de comprimento, e a área 2 que terá 65,8 metros de fundo e 35 metros de comprimento.
Como você pode notar alguns números foram esquecidos, porque já estão incluídos nos outros.
Então para calcular a área dele necessita fazer primeiro a1, 25 vezes 108 = 2700 metros e a a2, 65,8 vezes 35 = 2303, agora basta soma as duas áreas que você terá o resultado total de 7306 metros.
Obs: Se quiser saber o perímetro basta somar todos os lados.
Atenciosamente
Sómente os mortos conhecem o fim da guerra
"Platão"
-

Neperiano
- Colaborador Voluntário

-
- Mensagens: 960
- Registrado em: Seg Jun 16, 2008 17:09
- Formação Escolar: GRADUAÇÃO
- Área/Curso: Engenharia de Produção
- Andamento: cursando
por sirlenibatista » Qua Mar 31, 2010 19:22
A Sua resposta está incorreta, voce equivocou-se ao fazer o calculo, ainda bem que notei na ultima hora e pude corrigir-me. A formula da conta está certa, o resultado errado: 2.700 + 2.303 é = 5.003 certo? Maligno escreveu:Ola
Para resolver essa questão basta dividir este terreno em duas partes, ou seja a área 1, que vai ser a de 25 metros de frente, e 108 metros de comprimento, e a área 2 que terá 65,8 metros de fundo e 35 metros de comprimento.
Como você pode notar alguns números foram esquecidos, porque já estão incluídos nos outros.
Então para calcular a área dele necessita fazer primeiro a1, 25 vezes 108 = 2700 metros e a a2, 65,8 vezes 35 = 2303, agora basta soma as duas áreas que você terá o resultado total de 7306 metros.
Obs: Se quiser saber o perímetro basta somar todos os lados.
Atenciosamente
-
sirlenibatista
- Novo Usuário

-
- Mensagens: 4
- Registrado em: Ter Mar 23, 2010 19:05
- Formação Escolar: ENSINO MÉDIO
- Andamento: formado
por Neperiano » Qua Mar 31, 2010 20:11
Ola
Hehehehe naum sei daonde calculei aquilo, o que você fez esta certo sim
Atenciosamente
Sómente os mortos conhecem o fim da guerra
"Platão"
-

Neperiano
- Colaborador Voluntário

-
- Mensagens: 960
- Registrado em: Seg Jun 16, 2008 17:09
- Formação Escolar: GRADUAÇÃO
- Área/Curso: Engenharia de Produção
- Andamento: cursando
Voltar para Cálculo: Limites, Derivadas e Integrais
Se chegou até aqui, provavelmente tenha interesse pelos tópicos relacionados abaixo.
Aproveite a leitura. Bons estudos!
-
- Não consigo calcular essa derivada!!!
por Catalao » Qua Mai 09, 2012 19:51
- 3 Respostas
- 2379 Exibições
- Última mensagem por LuizAquino

Seg Mai 14, 2012 14:55
Cálculo: Limites, Derivadas e Integrais
-
- [Cálculo do Tamanho de uma amostra]
por danimalaca » Seg Dez 03, 2012 19:10
- 1 Respostas
- 1836 Exibições
- Última mensagem por Neperiano

Qua Dez 05, 2012 14:09
Estatística
-
- Tamanho da amostra - população heterogenia e pequena
por Roniberto » Sex Fev 13, 2009 15:41
- 2 Respostas
- 2883 Exibições
- Última mensagem por Roniberto

Ter Fev 17, 2009 09:22
Estatística
-
- Análise combinatória para um vetor de tamanho n
por lfccruz » Qua Ago 21, 2013 06:10
- 0 Respostas
- 1453 Exibições
- Última mensagem por lfccruz

Qua Ago 21, 2013 06:10
Análise Combinatória
-
- Preço de um terreno
por Andreza » Ter Jan 17, 2012 16:20
- 1 Respostas
- 1263 Exibições
- Última mensagem por MarceloFantini

Ter Jan 17, 2012 19:17
Matemática Financeira
Usuários navegando neste fórum: Nenhum usuário registrado e 5 visitantes
Assunto:
Unesp - 95 Números Complexos
Autor:
Alucard014 - Dom Ago 01, 2010 18:22
(UNESP - 95) Seja L o Afixo de um Número complexo

em um sistema de coordenadas cartesianas xOy. Determine o número complexo b , de módulo igual a 1 , cujo afixo M pertence ao quarto quadrante e é tal que o ângulo LÔM é reto.
Assunto:
Unesp - 95 Números Complexos
Autor:
MarceloFantini - Qui Ago 05, 2010 17:27
Seja

o ângulo entre o eixo horizontal e o afixo

. O triângulo é retângulo com catetos

e

, tal que

. Seja

o ângulo complementar. Então

. Como

, o ângulo que o afixo

formará com a horizontal será

, mas negativo pois tem de ser no quarto quadrante. Se

, então

. Como módulo é um:

.
Logo, o afixo é

.
Powered by phpBB © phpBB Group.
phpBB Mobile / SEO by Artodia.